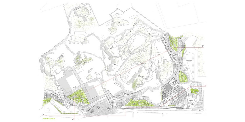
inNATUR: Centro de Interpretación de la Naturaleza


 ANTEPROYECTO   PROYECTO   EJECUCIÓN   FINALIZADO 
Proyecto: Centro de Interpretación CANTERA DE S´HOSTAL
Dirección: Ciutadella (MENORCA)
Cliente: OPENGAP
Superficie construida: 10000 m2
Arquitectos: Gonzalo Aragón Olalla
Juan Farina Cuevas
Francisco Felipe Gordo Martín
 
 1 | 2 | 3 | 4 | 5 | 6 | 7 | 8 | 9 
<