Centro educativo en Batres, Madrid


 ANTEPROYECTO   PROYECTO   EJECUCIÓN   FINALIZADO 
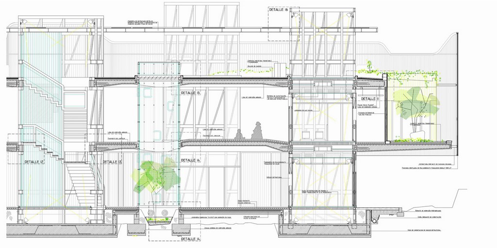
Proyecto: Centro Educativo Infantil, Prim. y Sec.
Dirección: Batres, Madrid
Cliente: -------
Superficie construida: 7500 m2
Arquitectos: Gonzalo Aragón Olalla



 
 1 | 2 | 3 | 4 | 5 | 6 | 7 | 8 | 9 | 10 
<