Vivienda en la Berzosa


 ANTEPROYECTO   PROYECTO   EJECUCIÓN   FINALIZADO 
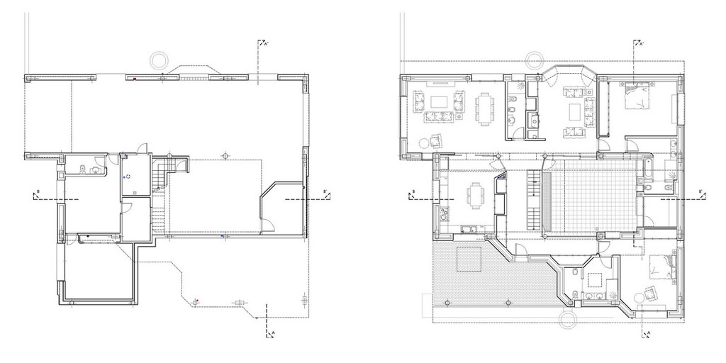
Proyecto: Vivienda unifamiliar aislada
Dirección: Hoyo de Manzanares
Cliente: Privado
Superficie construida: 506,99 m²
Arquitectos: Gonzalo Aragón Olalla
Francisco Gordo Martín
 
 1 | 2 | 3 | 4 | 5 | 6 | 7 | 8 | 9 
<