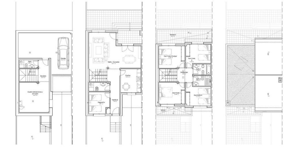
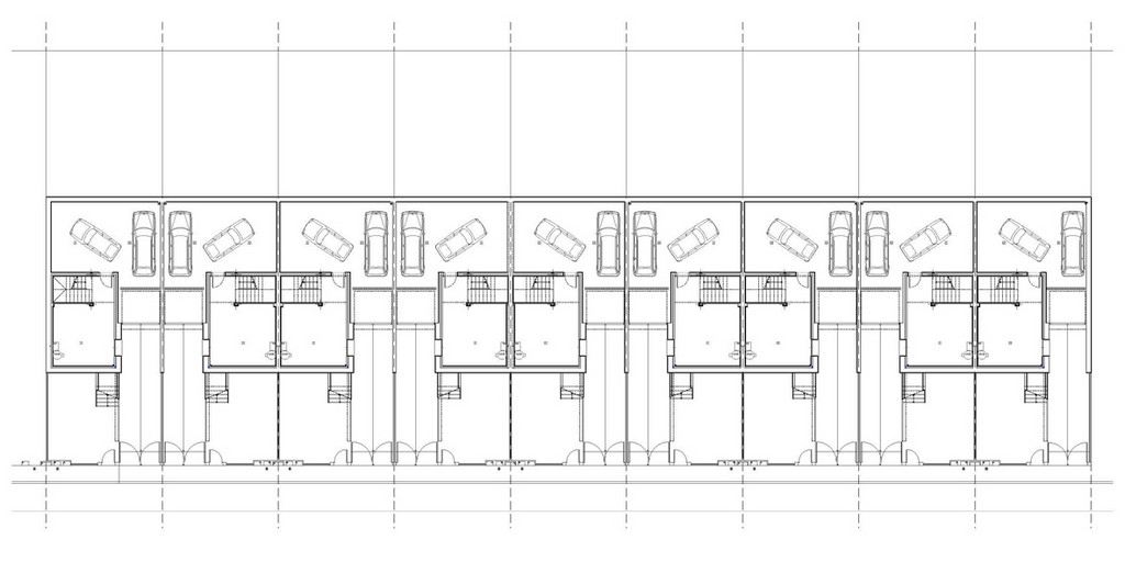
Residencial Topacio


 ANTEPROYECTO   PROYECTO   EJECUCIÓN   FINALIZADO 
Proyecto: 10 Viviendas unifamiliares adosadas
Dirección: Griñón
Cliente: Privado
Superficie construida: 2635,70 m²
Arquitectos: Gonzalo Aragón Olalla
Francisco Gordo Martín
 
 1 | 2 | 3 | 4 | 5 | 6 | 7 | 8 | 9 | 10 
<