Residencial Jaras
ANTEPROYECTO
PROYECTO
EJECUCIÓN
FINALIZADO
Proyecto:
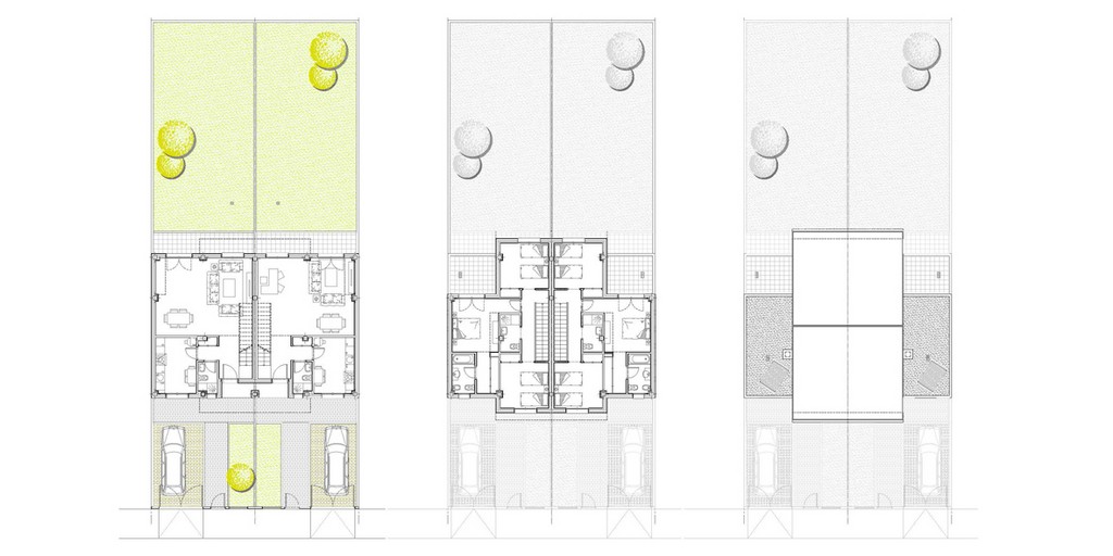
Viviendas unifamiliares adosadas
Dirección:
Sector 7 de Torrejón de la Calzada
Cliente:
Privado
Superficie construida:
3350 m²
Arquitectos:
Gonzalo Aragón Olalla
Francisco Gordo Martín
1 |
2
|
3
|
4
|
5
|
6
|
7
|
8
1
| 2 |
3
|
4
|
5
|
6
|
7
|
8
1
|
2
| 3 |
4
|
5
|
6
|
7
|
8
1
|
2
|
3
| 4 |
5
|
6
|
7
|
8
1
|
2
|
3
|
4
| 5 |
6
|
7
|
8
1
|
2
|
3
|
4
|
5
| 6 |
7
|
8
1
|
2
|
3
|
4
|
5
|
6
| 7 |
8
1
|
2
|
3
|
4
|
5
|
6
|
7
| 8
<