Cambio de uso Z13
|
|
|
|
|
ANTEPROYECTO
|
PROYECTO
|
EJECUCIÓN
|
FINALIZADO
|
|
|
|
Proyecto:
|
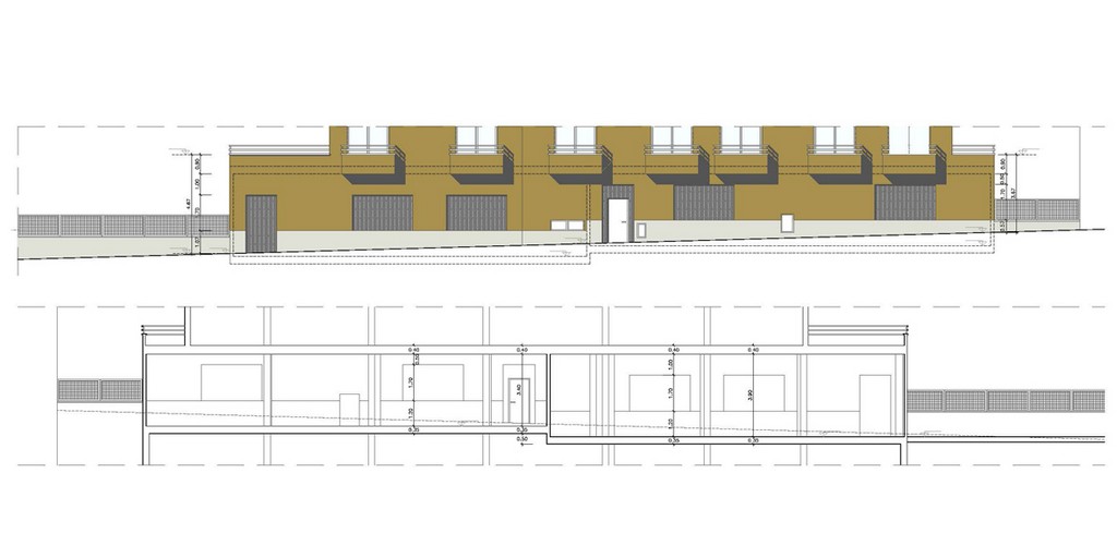
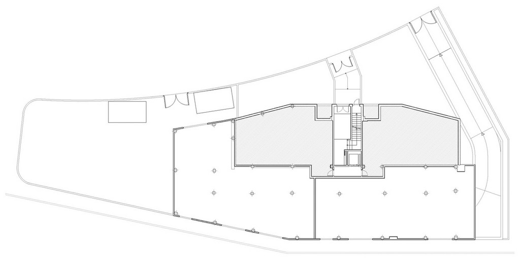
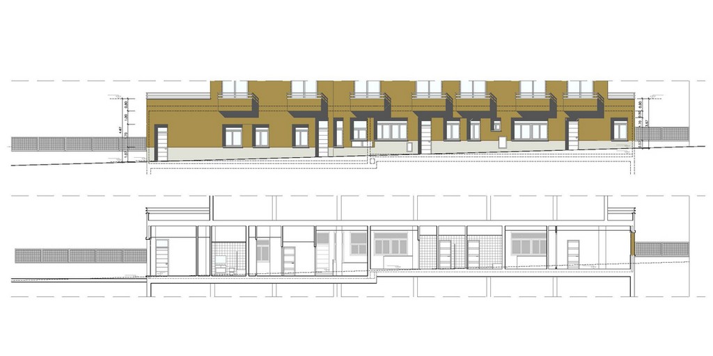
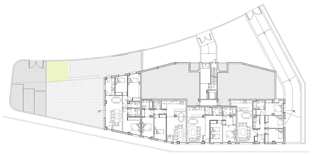
Cambio de uso de local a vivienda |
|
Dirección:
|
C/ las Zarzas, 13 Torrejón de la Calzada |
|
Cliente:
|
Privado |
|
Superficie construida: 393 m² |
|
Arquitectos:
|
Gonzalo Aragón Olalla Francisco Gordo Martín |
|
|
|
|
|