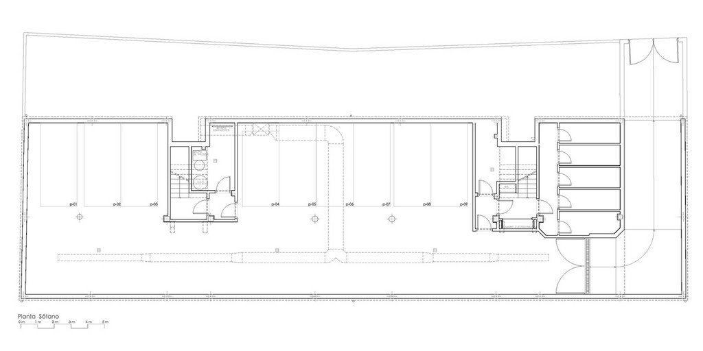
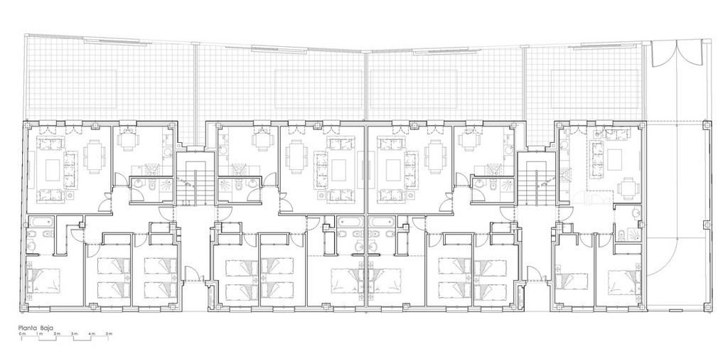
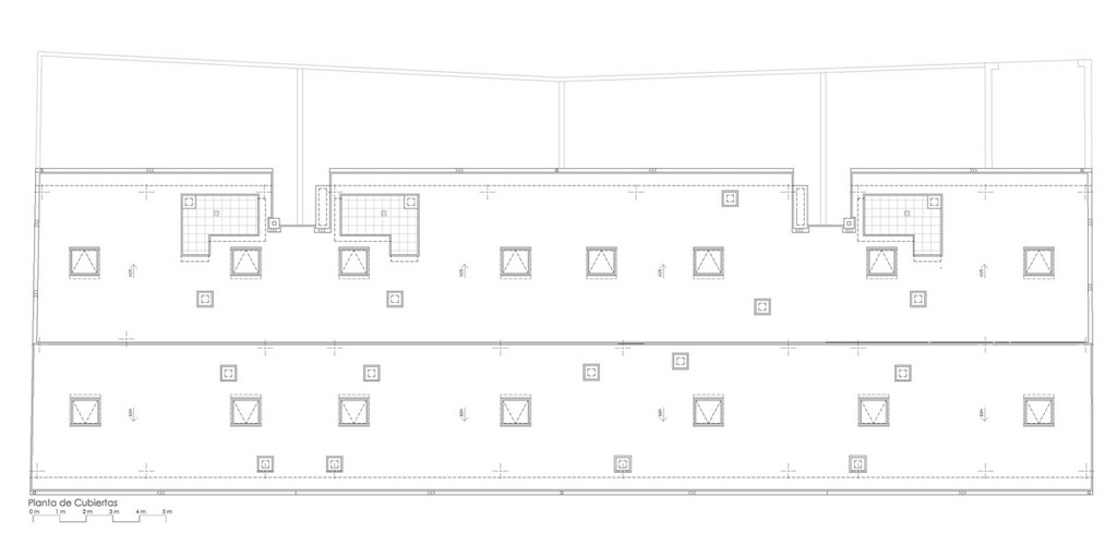
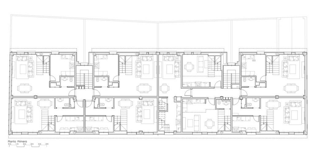
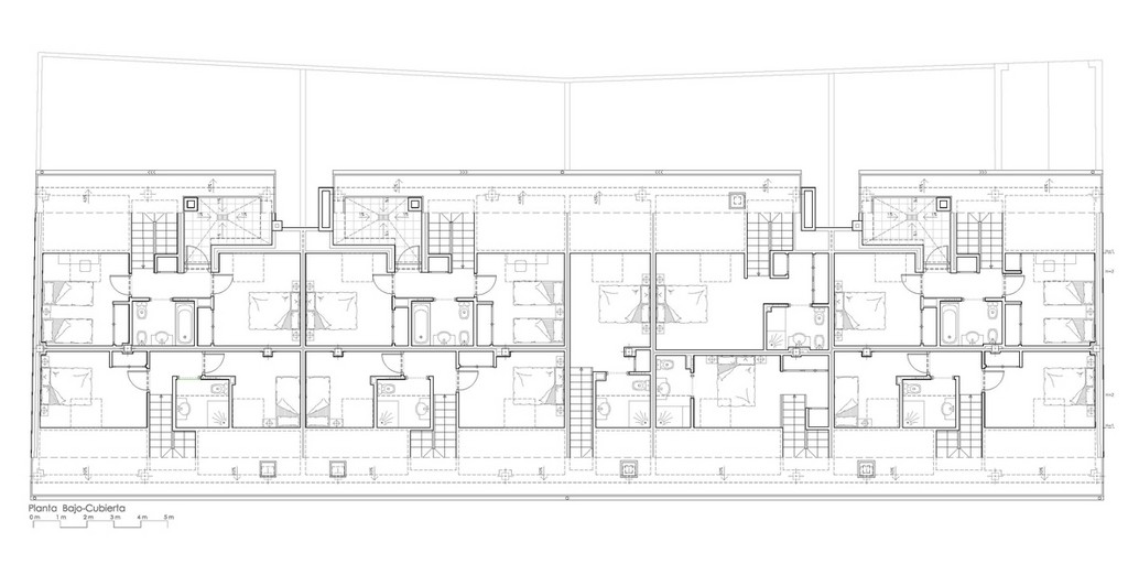
13 viviendas Torrejón de la Calzada
ANTEPROYECTO
PROYECTO
EJECUCIÓN
FINALIZADO
Proyecto:
Edificio residencial de 13 viviendas libres
Dirección:
C/ San Sebastián, 5 y 7
Cliente:
Privado
Superficie construida:
1467 m²
Arquitectos:
Gonzalo Aragón Olalla
Francisco Gordo Martín
AMBITEC
1 |
2
|
3
|
4
|
5
|
6
|
7
1
| 2 |
3
|
4
|
5
|
6
|
7
1
|
2
| 3 |
4
|
5
|
6
|
7
1
|
2
|
3
| 4 |
5
|
6
|
7
1
|
2
|
3
|
4
| 5 |
6
|
7
1
|
2
|
3
|
4
|
5
| 6 |
7
1
|
2
|
3
|
4
|
5
|
6
| 7
<