Residencial UE-2
ANTEPROYECTO
PROYECTO
EJECUCIÓN
FINALIZADO
Proyecto:
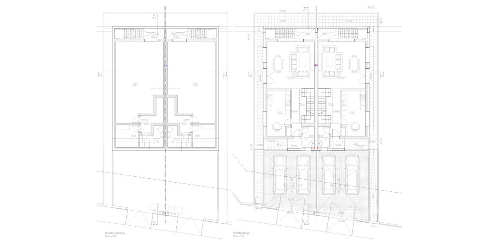
10 Viviendas en Cubas de la Sagra
Dirección:
Unidad de Ejecución UE-2. Cubas de la Sagra
Cliente:
AMBITEC
Superficie construida:
2440 m²
Arquitectos:
Gonzalo Aragón Olalla
Francisco Gordo Martín
AMBITEC
1 |
2
|
3
|
4
1
| 2 |
3
|
4
1
|
2
| 3 |
4
1
|
2
|
3
| 4
<