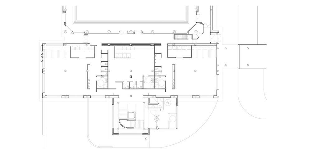
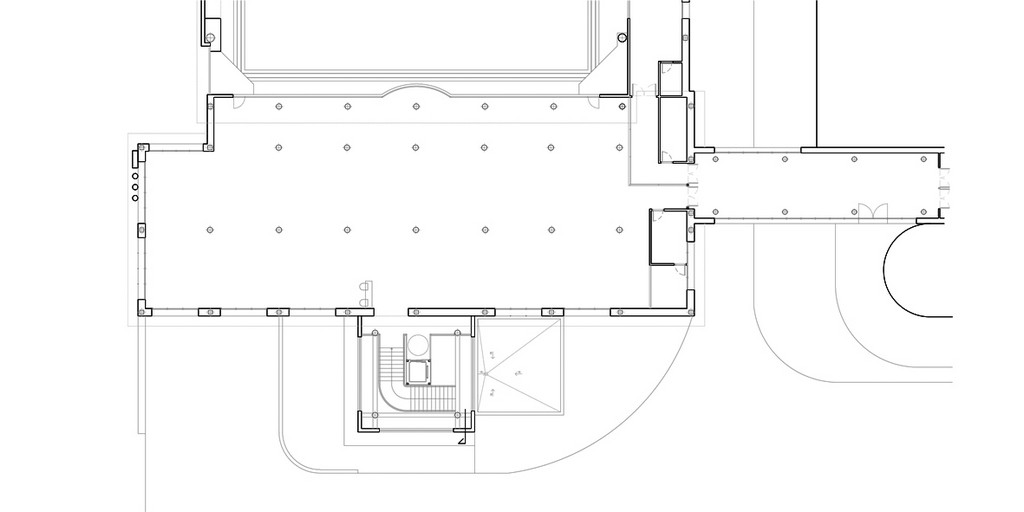
Complejo Deportivo Lorenzo Rico
ANTEPROYECTO
PROYECTO
EJECUCIÓN
FINALIZADO
Proyecto:
Rehabilitación del Complejo Deportivo Lorenzo Rico
Dirección:
Calle de las Huertas 55, Colmenar Viejo
Cliente:
Mistral
Superficie construida:
1500 m²
Arquitectos:
Gonzalo Aragón Olalla
Francisco Gordo Martín
1 |
2
|
3
|
4
|
5
|
6
|
7
1
| 2 |
3
|
4
|
5
|
6
|
7
1
|
2
| 3 |
4
|
5
|
6
|
7
1
|
2
|
3
| 4 |
5
|
6
|
7
1
|
2
|
3
|
4
| 5 |
6
|
7
1
|
2
|
3
|
4
|
5
| 6 |
7
1
|
2
|
3
|
4
|
5
|
6
| 7
<