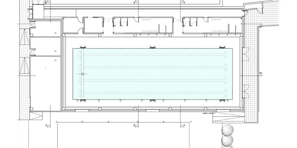
Piscina Climatizada Talamanca del Jarama


 ANTEPROYECTO   PROYECTO   EJECUCIÓN   FINALIZADO 
Proyecto: Piscina Climatizada en el Complejo Deportivo de Talamanca del Jarama
Dirección: Plaza del Santo Ángel, Talamanca del Jarama
Cliente: Ayuntamiento de Talamanca del Jarama
Superficie construida: 2499 m²
Arquitectos: Gonzalo Aragón Olalla
Francisco Gordo Martín
 
 1 | 2 | 3 | 4 | 5 
<